Lighthouse Custom Homes, Inc. | St. Charles
Builder: Lighthouse Custom Home, Inc.
City: St. Charles, IL
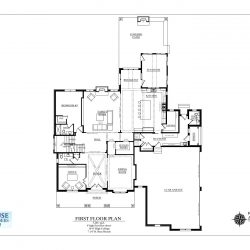
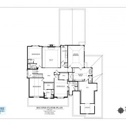
This masterfully designed Industrial Farmhouse style home with a coastal vibe by Lighthouse Custom Builders, Inc. is located in gorgeous Prairie Lakes Subdivision, minutes from downtown St. Charles and Geneva.Walking into the home you are welcomed by the impressive foyer which leads to the oversized Dining Room and Family Room. The expansive windows showcase the beautiful 8” wide white oak floors, 2 Story stone fireplace, 2nd Floor balcony and Alderwood beams. Prepare to be wowed by the incredible kitchen with beamed ceiling, 10’ x 7’ center island and Wolf/Sub Zero Appliances. Included is a full finished basement with bar, theatre room, craft room, rec room and exercise room.
Completing this home is the expansive outdoor living space complete with covered patio, outdoor kitchen with built-in 54” Wolf Grill, fireplace, paver patio with fire pit and in ground pool.



















